桂林地产网QQ群
  • 桂林地产网①群:华体会英超联
房产团购
品牌地产
  • 信昌·棠棣之华
  • 彰泰金科·博翠漓江
  • 彰泰集团
  • 万达大都会·滨江
  • 桂林融创九棠府
  • 桂林融创文旅城
  • 荣和林溪府
  • 联发·悦溪府

阳光书院

特色:

团购报名

×团购报名

参与团购,请填写以下内容

*为必填,报名成功后您将收到该楼盘及周边项目看房、团购信息,我们将对您的个人信息保密。

参加团购 报名现场看房

更多买房意向请留言(200字以内)

效果图

效果图

广西首个书院系作品,高校圈文化生活社区暂无视频

待定
查看近期价格

贷款计算器

  • 售楼处电话: 0773-3663399
项目介绍
项目配套
交通状况
建材装修
楼层状况
车位信息
相关信息
  阳光书院是由桂林嘉泽地产倾力打造的桂林首个以高校圈文化生活为特色的高品质、高品味住宅小区。项目毗邻桂林市政府,坐落于文教中心、商业中心、行政中心、景观中心等四大中心为一体的CLD桂林中央生活区。该板块是政府重点打造的文教板块,与桂林医学院一街之隔,近揽桂林师范高等专科学校、桂林市职业教育中心学校、桂林卫生学校、中共桂林市党校等各大高校,并近距离辐射麓湖国际小学、师大二附、临桂第三中学、新龙中学等,为业主培育青春时尚、书香四溢的文化氛围,带来超居住的精神文化熏养。
  项目总用地面积19182㎡,总建筑面积93000㎡,一共由6栋住宅和近5000㎡的沿街商铺组成,其中住宅均为89-129㎡高拓实用美宅。由特级资质中国华西承建,泰国知名设计师主笔,匠心筑造现代简约的坡地化院落式围合住区,并重金聘请中国鼎级花样年国际物业,正在洽谈引进品牌书店、知名咖啡屋等时尚文化生活配套,线上线下整合教育资源、医疗保健资源,真正为名门智士量身定制全生命周期的康养、文化生活圈层。
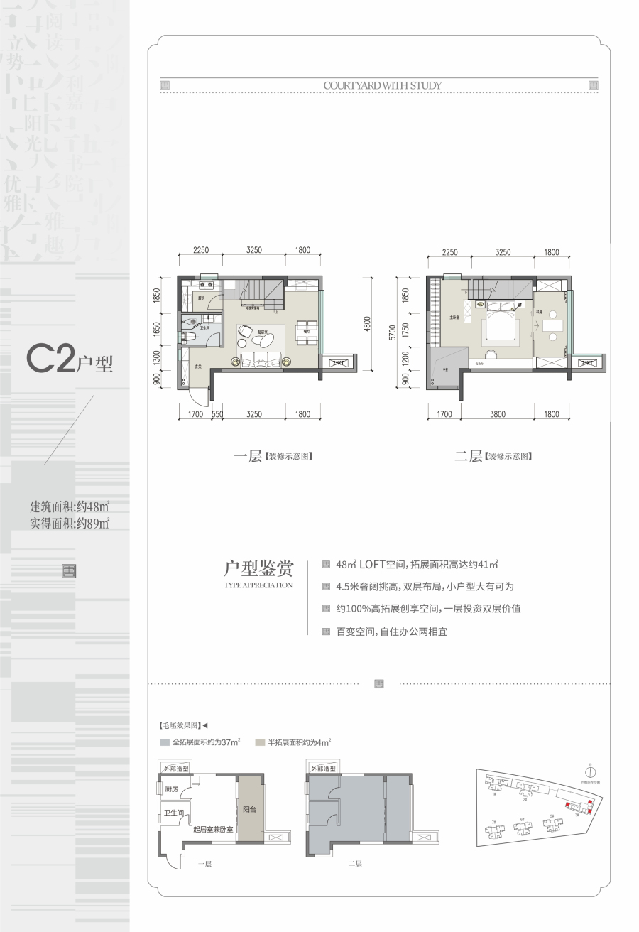
 主力户型
 效果图
2条点评 / 我也说几句
 网友点评
更多点评

最新点评

精彩点评

     发表评论
    我要对楼盘阳光书院发表评论!
    标题:
    内容:
    点击获取验证码
    Baidu
    map